当前位置:
首页
>
通知公告
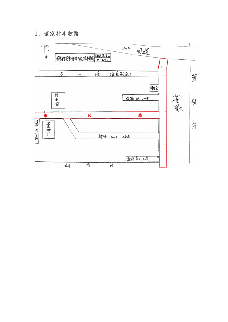
关于站前区15条道路拟命名名称的公示
来源:
站前区民政局
作者:
发布时间:2025-09-30
阅读次数:
【字号:
大
中
小
】
分享:
附件:
视频:
扫一扫在手机打开当前页